1800 Bill Baggs Road - 112 - Suite, Yankton, SD 57078
1800 Bill Baggs Road - 112 - Suite, Yankton, SD 57078
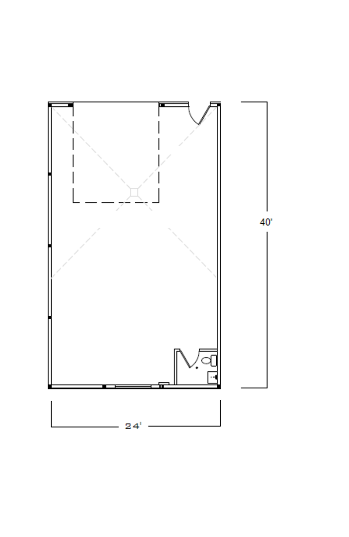
FOR LEASE: 960SF Shop Condominium
For Lease
- Heated Shop Space
- Private Bathroom
- 14'x14' Overhead Door
- Floor Drain
- Commercial LED Interior Lighting
- 200 AMP Panel
- Exterior Lighting
- Paved Driveway/Parking
- Equipped w/ power, water, city sewer, natural gas, phone/internet
- Can be built to suit
- Heated Shop Space
- Private Bathroom
- 14'x14' Overhead Door
- Floor Drain
- Commercial LED Interior Lighting
- 200 AMP Panel
- Exterior Lighting
- Paved Driveway/Parking
- Equipped w/ power, water, city sewer, natural gas, phone/internet
- Can be built to suit
Contact us:





